Московская квартира известного пианиста
О квартире: московская резиденция молодого, но уже достаточно известного пианиста. Большую часть времени хозяин квартиры живет в Нью-Йорке и гастролирует, поэтому в основное время в квартире живут его родители. Общий стиль интерьера: обстановка пронизана музыкальной тематикой. Мягкие контрасты, ощущение света и воздуха, тяга к простым формам и легким конструкциям — основные черты этого проекта.

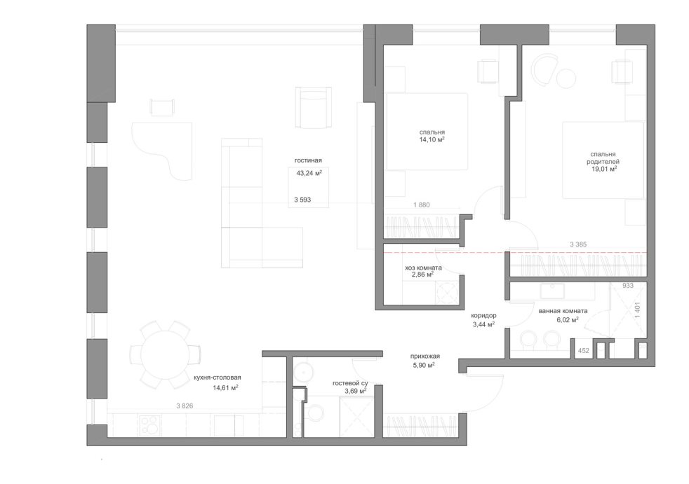
Планировка
На площади 120 м2 расположилась просторная гостиная, объединенная с кухней-столовой, две спальни, два санузла и хозяйственная комната.

На фото: планировка квартиры.
Гостиная и кухня-столовая
Гостиная, объединенная с кухней и столовой, занимает почти 60 м. Центральное место занимает рояль. Рядом расположился модульный диван Minotti Leonard в компании группы круглых журнальных столиков.







На фото: интерьер гостиной.
Мягкое кресло насыщенного цвета — единственный яркий акцент среди приглушенной гаммы.

На фото: яркое кресло и стильный напольный светильник формируют зону для чтения.
Лаконичный кухонный гарнитур удачно вписан в конфигурацию помещения и практически не выделяется. Стеклянный кухонный стол и стулья с изящным силуэтом поддерживают ощущение простора и воздуха.
Холл
Стены холла украшают черно-белые фото мировых концертных залов, в которых выступал хозяин квартиры.

На фото: в зеркальном фасаде встроенного зеркального шкафа отражаются черно-белые фото всемирно известных концертных залов.
Спальня родителей
Музыкант, которому принадлежит квартира, большую часть времени проводит в Нью-Йорке, а в апартаментах проживают его родители.
В просторной родительской спальне помимо зоны сна предусмотрено компактное рабочее место. Встроенный гардеробный шкаф с глянцевым белым фасадом вмещает все необходимые вещи и помогает сохранить обстановку подчеркнутого минимализма.



На фото: интерьер спальни родителей. Стул Cattelan Italia Magda, стол и низкая тумба из серии Lago Air.
Спальня хозяина
Хозяйская спальня занимает чуть меньшую площадь, чем родительская. В ней также предусмотрено небольшое рабочее место. Стена с телевизором — на самом деле вместительная система хранения с дверцами, расположенными мозаикой. Стену у изголовья кровати украшает оригинальное панно, а яркий текстиль добавляет в спокойную гамму сочных красок.




На фото: спальня хозяина квартиры.
Хозяйский санузел
Санузел для хозяев полностью отделан нейтральным серым керамогранитом с рисунком камня. Мебель простых форм и лаконичная сантехника продолжают линию минимализма, которая прослеживается во всей квартире.

На фото: санузел для хозяев квартиры, общий на 2 спальни.
Мебель проекта в IB Gallery
Многие предметы интерьера из этого проекта можно приобрести в IB Gallery. Если вам понравилась определенная модель, отправьте нам запрос по электронной почте. Наши специалисты найдут его в нашем каталоге или подберут аналогичные предметы по каталогам наших фабрик-партнеров в Италии.
Теги: Диваны, минимализм, Кресла, Столы, Стулья, Кровати, Торшеры, Светильники, Шкафы, Cattelan Italia, Lago, Bonaldo, Minotti, Апартаменты, Современнй стиль
Источник: hqroom.ru